Rouquet Immobilier Agence
Télécharger la fiche
Exclusivité

Appartement 1 pièce(s) 27.67 m²

Poitiers (86000)
63 500 € Référence 111

A propos de ce bien

RARE - VENDU LOUE - 10MIN CAMPUS EN VOITURE OU BUS DIRECT CAMPUS & CENTRE-VILLE - PLACE DE PARKING

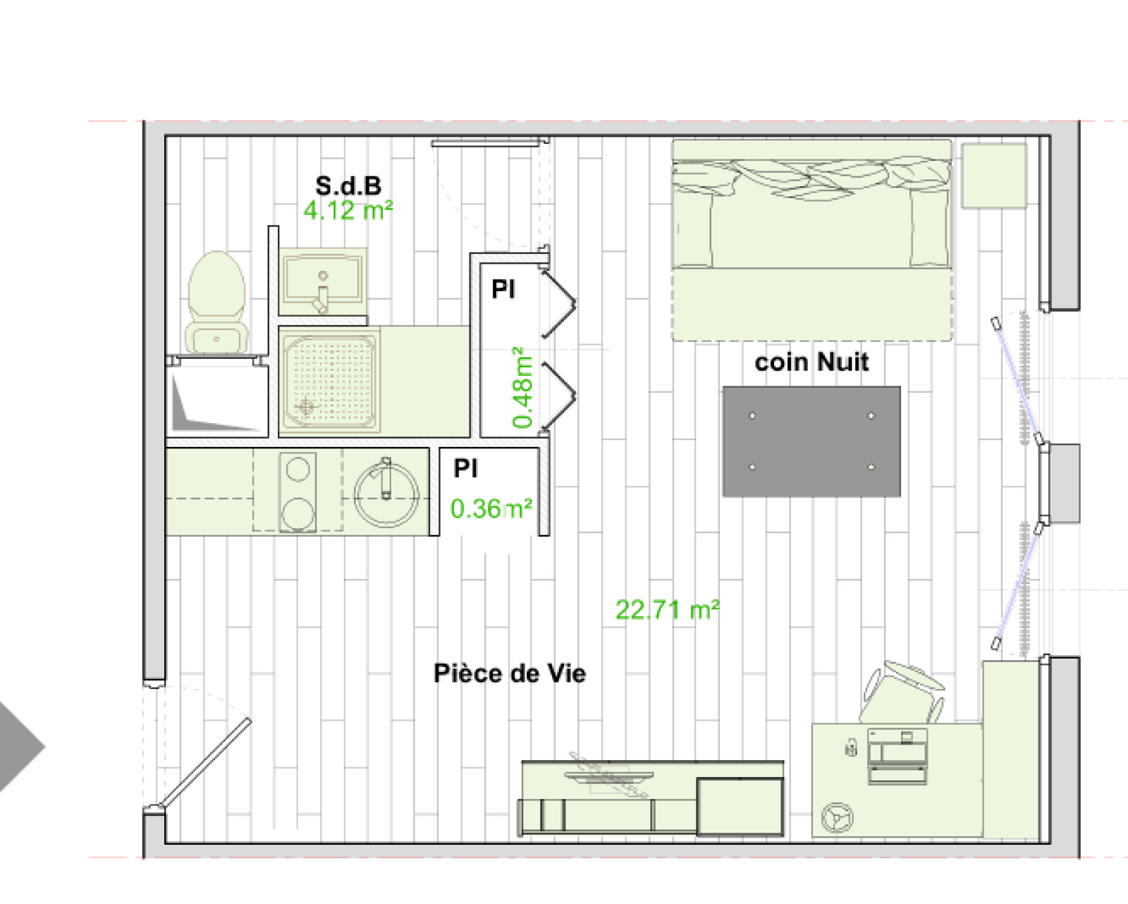
Nous vous proposons ce spacieux studio de 28m² situé au 1er étage d'une copropriété en bon état des années 75 dans un quartier résidentiel calme. Lumineux et très bien disposé, l'appartement se compose d'une entrée avec kitchenette, pièce de vie avec coin nuit et rangements, salle d'eau avec wc. Une place de parking en sous sol complète ce bien.

Appartement vendu loué 351€ + 73€ soit 424€ CC avec un bail jusqu'au 1er Juillet 2029

Caractéristiques de ce bien

  • Surface 27,67 m²
  • carrez 28 m²
  • 1 salle(s) d'eau
  • construit en 1975
  • kitchenette (équipée)
  • exposition Sud-Est
  • 2 côté(s) mitoyen(s)
  • 1er étage
  • 2 étage(s)

Diagnostics énergétiques

Consommation énergétique
A B C D E F G
Emission de gaz à effet de serre
A B C D E F G

Montant estimé des dépenses annuelles d'énergie pour un usage standard est compris entre 370 € et 540 € . Prix moyens des énergies indexés sur les années 2021, 2022 et 2023 (abonnements compris).

Informations financières

Prix de vente honoraires TTC inclus 63 500 €
Taxe foncière annuelle 550 €

Informations de copropriété

Copropriété Oui
Lot n° 8
Nombre de lots 46
Quote part annuelle des charges 1 887 €
Plan de sauvegarde Non
Statut du syndic Pas de procédure en cours

Calcul des mensualités

* Champs obligatoires