Rouquet Immobilier Agence
Télécharger la fiche

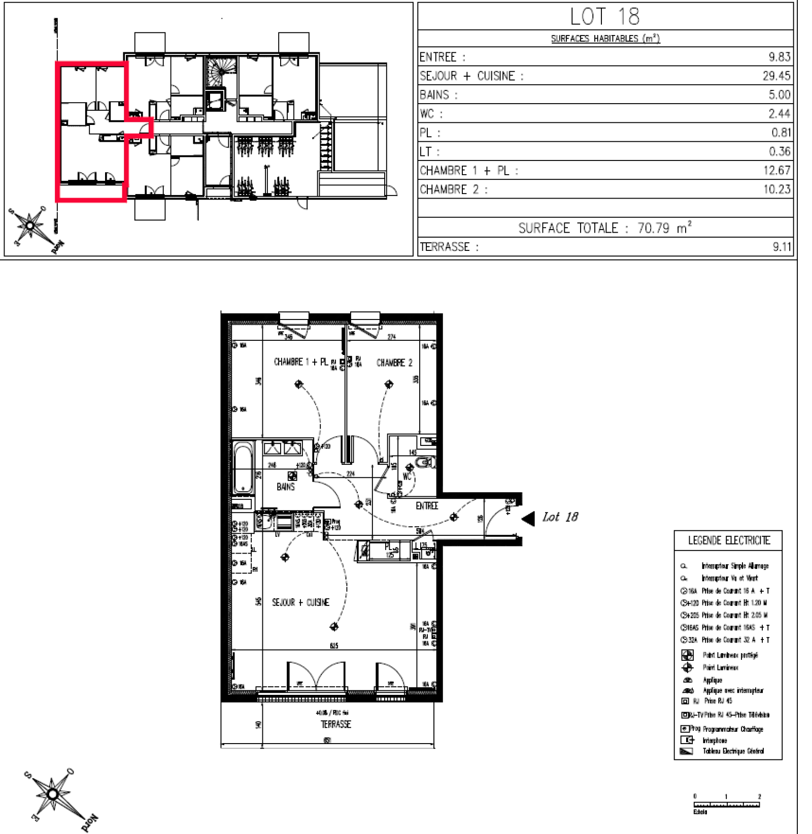
Appartement 3 pièce(s) 2 chambre(s) 71 m²

Poitiers (86000)
219 000 € Référence 01098

A propos de ce bien

RARE - POITIERS OUEST MOINS DE 10MIN GARE ET CENTRE VILLE - 2 PARKINGS - TERRASSENous vous proposons cet appartement T3 situé au rez de chaussée d'une résidence venant d'être livrée sur Poitiers Ouest. Calme, lumineux et très bien disposé l'appartement se compose d'une spacieuse entrée avec rangement, séjour avec cuisine ouverte et porte fenêtre ouvrant sur une terrasse de 11m², 2 chambres, salle de bain, wc séparé. Immeuble bien isolé, charges de copropriété maitrisées, Appartement vendu avec 2 places de parking. Résidence récente de 4 bâtiments en R+3 maximum avec local vélo et à proximité du bus ligne 11 desservant la gare le centre ville et le CHU. Appartement disponible immédiatement 

Caractéristiques de ce bien

  • Surface 71 m²
  • 2 chambre(s)
  • 1 salle(s) de bain
  • construit en 2025
  • Chauffage individuel : chaudière (gaz)
  • 2 parking(s)
  • exposition Nord-Ouest
  • 1 côté(s) mitoyen(s)
  • 3 étage(s)
  • terrasse
  • visiophone
  • interphone
  • accès handicapé

Diagnostics énergétiques

Consommation énergétique
A B C D E F G
Emission de gaz à effet de serre
A B C D E F G
DPE vierge

Informations financières

Prix de vente honoraires TTC inclus 219 000 €

Informations de copropriété

Copropriété Oui
Lot n° 18
Nombre de lots 38

Calcul des mensualités

* Champs obligatoires